千代田区、神田エリアの貸事務所・賃貸オフィス・
賃貸店舗検索ならD0rent(ドレント)!

半蔵門ウッドフィールド地上3階

物件コード
drt20260224-r10

物件登録日
2026/02/24

物件のオススメPoint

半蔵門ウッドフィールドは、1971年8月に竣工した地下1階地上7階建てのRC造オフィスビルです。
物件は東京都千代田区麹町2丁目7-3に位置しており、歴史と文化が息づく番町・麹町エリアの一角を占めます。この地域は官公庁や教育機関、法律事務所などが集積する落ち着いた雰囲気のオフィス街です。周辺の建物群と調和する、清潔感のある外観デザインが特徴です。都心でありながらも落ち着いたビジネス環境を求める企業様にご検討いただけます。
交通アクセスは、東京メトロ半蔵門線半蔵門駅から徒歩4分、東京メトロ有楽町線麹町駅から徒歩7分と、主要ターミナル駅へのアクセスも考慮しやすい立地です。複数路線が利用できるため、従業員の通勤負担軽減や取引先からの来訪時にも利便性が期待できます。周辺には、日常的なランチに利用できる飲食店やカフェ、急な書類作成や備品購入に便利なコンビニエンスストアが点在しています。また、金融機関や郵便局なども徒歩圏内にあり、日々の業務を円滑に進めるための施設が整っています。
ビルには昇降を補助するエレベーターが設置されており、地上3階への移動もスムーズです。共用部も清掃が行き届いており、日々の利用において快適な環境が維持されています。
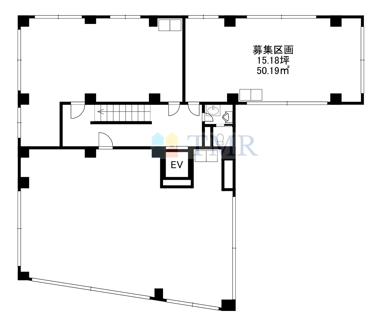
今回募集しているのは地上3階の区画で、専有面積は50.19平方メートル(約15.2坪)です。室内のレイアウトを検討しやすい整形空間が確保されており、執務スペースとして機能的に利用できるでしょう。少人数のオフィスから、部署ごとの区画、またはサテライトオフィスなど、多様なビジネスニーズに対応できる空間設計が可能です。OA機器や通信環境の整備もしやすい構造となっています。
この物件は、都心で事業を展開する企業様、特に交通利便性の高さを重視し、落ち着いたビジネス環境を求めるお客様に適しています。新たな事業の拠点、既存拠点の増設、またはフレキシブルなワークスタイルを支えるサテライトオフィスとしてもご検討いただけます。
賃料は月額230,000円、保証金は6ヶ月分です。入居時期については、柔軟にご相談を承りますので、お気軽にお問い合わせください。

半蔵門ウッドフィールド地上3階

物件コード:drt20260224-r10

物件登録日:2026/02/24

賃貸情報

賃料合計 230,000円 / 月(税別)
坪単価 15,100円(税別)
共益費 なし
敷金 なし
礼金 1ヶ月
保証金 6ヶ月
更新料 1ヶ月
契約期間 普通借家:2年
現況 退去予定()

基本情報

住所 東京都千代田区麹町2丁目7-3
最寄駅 東京メトロ半蔵門線半蔵門駅4分、東京メトロ有楽町線麹町駅7分
竣工年月 1971年 8月
構造 RC造 地上7階建 地下1階
階数 地上3階
広さ 15.2坪
入居時期 相談
備考

共益費:賃料に含む
償却解約時 1ヶ月

・家賃保証必須(初回保証料:月額固定費の100%)
・保険加入加入義務あり
・物販、クリニック、スクール系相談可各種業種ご相談ください

  • 給湯
  • 室外トイレ(共用)
  • エアコン
  • 個別空調
  • エレベーター
  • 店舗可
  • 24時間利用可
  • 駅前
  • 仲介手数料無料

物件のオススメPoint

半蔵門ウッドフィールドは、1971年8月に竣工した地下1階地上7階建てのRC造オフィスビルです。
物件は東京都千代田区麹町2丁目7-3に位置しており、歴史と文化が息づく番町・麹町エリアの一角を占めます。この地域は官公庁や教育機関、法律事務所などが集積する落ち着いた雰囲気のオフィス街です。周辺の建物群と調和する、清潔感のある外観デザインが特徴です。都心でありながらも落ち着いたビジネス環境を求める企業様にご検討いただけます。
交通アクセスは、東京メトロ半蔵門線半蔵門駅から徒歩4分、東京メトロ有楽町線麹町駅から徒歩7分と、主要ターミナル駅へのアクセスも考慮しやすい立地です。複数路線が利用できるため、従業員の通勤負担軽減や取引先からの来訪時にも利便性が期待できます。周辺には、日常的なランチに利用できる飲食店やカフェ、急な書類作成や備品購入に便利なコンビニエンスストアが点在しています。また、金融機関や郵便局なども徒歩圏内にあり、日々の業務を円滑に進めるための施設が整っています。
ビルには昇降を補助するエレベーターが設置されており、地上3階への移動もスムーズです。共用部も清掃が行き届いており、日々の利用において快適な環境が維持されています。
今回募集しているのは地上3階の区画で、専有面積は50.19平方メートル(約15.2坪)です。室内のレイアウトを検討しやすい整形空間が確保されており、執務スペースとして機能的に利用できるでしょう。少人数のオフィスから、部署ごとの区画、またはサテライトオフィスなど、多様なビジネスニーズに対応できる空間設計が可能です。OA機器や通信環境の整備もしやすい構造となっています。
この物件は、都心で事業を展開する企業様、特に交通利便性の高さを重視し、落ち着いたビジネス環境を求めるお客様に適しています。新たな事業の拠点、既存拠点の増設、またはフレキシブルなワークスタイルを支えるサテライトオフィスとしてもご検討いただけます。
賃料は月額230,000円、保証金は6ヶ月分です。入居時期については、柔軟にご相談を承りますので、お気軽にお問い合わせください。

半蔵門ウッドフィールド地上3階

こちらの物件の賃貸について、
ご要望・ご質問等ございましたら
お気軽にお問い合わせくださいませ。

この物件について問い合わせるこの物件を問い合わせる

現在募集中の区画

階数 広さ 坪単価 賃料合計(税別) 間取り お気に入り 物件詳細
地上4階A 坪/ 13.1坪 要問合せ 196,800円 詳細を見る
地上2階 坪/ 15.2坪 要問合せ 210,000円 詳細を見る
地上3階 坪/ 15.2坪 要問合せ 230,000円 詳細を見る

地上4階A

坪数

13.1坪

賃料合計(税別)

196,800円

詳細を見る詳細

地上2階

坪数

15.2坪

賃料合計(税別)

210,000円

詳細を見る詳細

地上3階

坪数

15.2坪

賃料合計(税別)

230,000円

詳細を見る詳細
¥

賃料が近い物件

MASU no SQUARE AKIHABARA地上5階

東京都千代田区外神田6丁目15-4
東京メトロ銀座線末広町駅3分

坪/ 9.5坪

270,000円 / 月(税別)

CS1818地上1階

東京都千代田区三番町18-18
都営新宿線市ヶ谷駅4分

坪/ 7.7坪

200,000円 / 月(税別)

秋葉原槇町ビル地上8階

東京都千代田区外神田3丁目3-3
東京メトロ銀座線末広町駅3分

坪/ 17.8坪

267,300円 / 月(税別)

畑山第一ビル地上4階

東京都千代田区神田猿楽町2丁目2-6
東京メトロ半蔵門線神保町駅6分

坪/ 18.1坪

270,750円 / 月(税別)

メイゾン麹町地上2階202号室

東京都千代田区麹町3丁目1-8
東京メトロ有楽町線麹町駅2分

坪/ 15.9坪

270,000円 / 月(税別)

麹町駅前商業ビル地上4階-5階

東京都千代田区麹町3丁目1-8
東京メトロ有楽町線麹町駅2分

坪/ 13.3坪

227,273円 / 月(税別)

麹町駅前商業ビル地上3階

東京都千代田区麹町3丁目1-8
東京メトロ有楽町線麹町駅2分

坪/ 11.1坪

200,000円 / 月(税別)

麹町駅前商業ビル地上2階

東京都千代田区麹町3丁目1-8
東京メトロ有楽町線麹町駅2分

坪/ 10.6坪

200,000円 / 月(税別)

南信堂ビル地上7階

東京都千代田区九段南3丁目7-7
都営新宿線市ヶ谷駅5分

坪/ 19坪

237,500円 / 月(税別)

南信堂ビル地上6階

東京都千代田区九段南3丁目7-7
都営新宿線市ヶ谷駅5分

坪/ 19坪

237,500円 / 月(税別)

松岡九段ビル地上2階206号室

東京都千代田区九段南2丁目2-8
東京メトロ東西線九段下駅4分

坪/ 14.5坪

195,750円 / 月(税別)

九段ビル地上3階

東京都千代田区九段南2丁目2-5
東京メトロ半蔵門線九段下駅6分

坪/ 24坪

276,000円 / 月(税別)

タイヤビル地上3階301号室

東京都千代田区九段北1丁目10-2
東京メトロ東西線九段下駅2分

坪/ 16.4坪

180,000円 / 月(税別)

サンライン第14ビル地上7階A室

東京都千代田区九段北4丁目3-16
JR総武・中央緩行線市ヶ谷駅5分

坪/ 16.4坪

237,527円 / 月(税別)

大晃ビル地上5階501号室

東京都千代田区神田錦町2丁目5-1
東京メトロ千代田線新御茶ノ水駅5分

坪/ 23.4坪

265,000円 / 月(税別)

HARVEY神田司町地上3階

東京都千代田区神田司町2丁目15-11
都営新宿線小川町駅2分

坪/ 5.6坪

241,230円 / 月(税別)

トナカイ神田タワー地上11階

東京都千代田区神田東松下町12-1
JR山手線神田駅4分

坪/ 15.8坪

275,800円 / 月(税別)

三好ビル地上2階

東京都千代田区神田多町2丁目7
JR山手線神田駅3分

坪/ 23.5坪

258,500円 / 月(税別)

リプロ神田ビル地上3階

東京都千代田区神田富山町17-3
JR山手線神田駅3分

坪/ 16.2坪

259,200円 / 月(税別)

荒井ビル地上5階北側

東京都千代田区神田駿河台3丁目5-15
東京メトロ千代田線新御茶ノ水駅2分

坪/ 17.5坪

245,000円 / 月(税別)

昭和ビル地上4階西側

東京都千代田区神田和泉町1丁目2-5
東京メトロ日比谷線秋葉原駅2分

坪/ 16.5坪

181,500円 / 月(税別)

和田ビル地上2階

東京都千代田区神田神保町1丁目10
東京メトロ半蔵門線神保町駅1分

坪/ 15坪

180,000円 / 月(税別)

富士第一ビル地上10階

千代田区神田須田町1丁目12-9
東京メトロ丸ノ内線淡路町駅1分

坪/ 18.5坪

240,000円 / 月(税別)

土井ビル地上2階

東京都千代田区内神田2丁目7-12
JR山手線神田駅3分

坪/ 15.7坪

180,000円 / 月(税別)

神保町TKビル地上4階

東京都千代田区神田神保町1丁目13-16
東京メトロ半蔵門線神保町駅2分

坪/ 16.9坪

279,015円 / 月(税別)

NTビル地上5階

東京都千代田区神田神保町1丁目22
東京メトロ半蔵門線神保町駅3分

坪/ 21.1坪

273,910円 / 月(税別)

神田第八KMビル地上3階

東京都千代田区小川町3丁目1
都営三田線神保町駅4分

坪/ 21.2坪

240,000円 / 月(税別)

エスペランサ神田小川町地上2階

東京都千代田区神田小川町3丁目11-7
都営新宿線小川町駅5分

坪/ 15.6坪

256,364円 / 月(税別)

LMN神田ビル地上5階+6階

東京都千代田区内神田2丁目13-6
JR山手線神田駅4分

坪/ 19.4坪

253,000円 / 月(税別)

LMN神田ビル地上4階

東京都千代田区内神田2丁目13-6
JR山手線神田駅4分

坪/ 14.8坪

180,000円 / 月(税別)

花岡ビル地上4階

東京都千代田区岩本町3丁目9-1
都営新宿線岩本町駅3分

坪/ 21.3坪

272,512円 / 月(税別)

岩本町寿共同ビル地上1階B区画

東京都千代田区岩本町3丁目9-13
JR山手線秋葉原駅5分

坪/ 20.6坪

211,820円 / 月(税別)

一番町フェニックスビル地上2階202号室

東京都千代田区一番町15-20
東京メトロ半蔵門線半蔵門駅3分

坪/ 11.5坪

180,000円 / 月(税別)

トライエム大手町ビル地上9階

東京都千代田区内神田1丁目5-1
東京メトロ丸ノ内線大手町駅5分

坪/ 20.5坪

280,000円 / 月(税別)

岩本町194ビル地上6階

東京都千代田区岩本町1丁目9-4
東京メトロ日比谷線小伝馬町駅3分

坪/ 16.6坪

227,273円 / 月(税別)

トーアビル地上2階202号室

東京都千代田区飯田橋2-16-9
都営新宿線九段下駅5分

坪/ 14.4坪

180,000円 / 月(税別)

ダイニ猿楽町ビル地上5階

東京都千代田区神田猿楽町1-2-4
東京メトロ半蔵門線神保町駅4分

坪/ 13.5坪

216,000円 / 月(税別)

カクタス飯田橋ビル地上7階702号室

東京都千代田区飯田橋4丁目7-11
東京メトロ東西線飯田橋駅2分

坪/ 20.4坪

203,400円 / 月(税別)

プロミエ秋葉原地上9階902号室

東京都千代田区神田練塀町73
JR山手線秋葉原駅3分

坪/ 13.7坪

261,000円 / 月(税別)

プロミエ秋葉原地上9階1101号室

東京都千代田区神田練塀町73
JR山手線秋葉原駅3分

坪/ 13.7坪

261,000円 / 月(税別)

プロミエ秋葉原地上10階1001号室

東京都千代田区神田練塀町73
JR山手線秋葉原駅3分

坪/ 13.7坪

261,000円 / 月(税別)

クリエイトビル地上5階

東京都千代田区飯田橋1丁目8‐10
JR中央・総武線飯田橋駅3分

坪/ 20.3坪

257,727円 / 月(税別)

橋口ビル地上2階

東京都千代田区神田神保町1丁目60
東京メトロ半蔵門線神保町駅5分

坪/ 23坪

276,000円 / 月(税別)

B・Fビル地上3階301号室

東京都千代田区神田神保町1丁目38‐1
都営三田線神保町駅3分

坪/ 24坪

250,909円 / 月(税別)

レオビル地上6階

東京都千代田区神田神保町1丁目3‐1
東京メトロ半蔵門線神保町駅2分

坪/ 9.3坪

225,455円 / 月(税別)

レオビル地上4階

東京都千代田区神田神保町1丁目3‐1
東京メトロ半蔵門線神保町駅2分

坪/ 9.3坪

225,454円 / 月(税別)

越後屋ビル地上3階302号室

東京都千代田区神田小川町3丁目‐20
東京メトロ半蔵門線神保町駅4分

坪/ 17.8坪

195,360円 / 月(税別)

第二木津ビル地上4階402号室

東京都千代田区神田小川町2-10

坪/ 18.8坪

206,800円 / 月(税別)

NAビル地上2階

東京都千代田区神田須田町1-3
東京メトロ丸ノ内線淡路町駅2分

坪/ 22.7坪

250,000円 / 月(税別)

カクタス飯田橋ビル地上5階503号室

東京都千代田区飯田橋4丁目7-11
JR総武・中央緩行線飯田橋駅3分

坪/ 22.9坪

229,000円 / 月(税別)

竹内ビル地上3階

東京都千代田区神田須田町1丁目-11
JR山手線神田駅3分

坪/ 17.5坪

245,000円 / 月(税別)

アオキビスポークビル地上6階

東京都千代田区神田神保町3丁目2
東京メトロ半蔵門線神保町駅3分

坪/ 14.2坪

200,000円 / 月(税別)

たちばなやビル地上1階

東京都千代田区神田小川町3丁目5-2
都営三田線神保町駅5分

坪/ 10坪

220,000円 / 月(税別)

昭和ビル地上3階東側

東京都千代田区神田和泉町1丁目2-5
東京メトロ日比谷線秋葉原駅2分

坪/ 30.1坪

270,000円 / 月(税別)

香文堂ビル地上5階

東京都千代田区内神田3丁目7-4
JR中央本線神田駅1分

坪/ 15坪

230,000円 / 月(税別)

ブライトンビル藤沢地上2階201号室

神奈川県藤沢市南藤沢15-16
JR東海道本線藤沢駅7分

坪/ 30坪

225,000円 / 月(税別)

MASU no SQUARE AKIHABARA地上5階

東京都千代田区外神田6丁目15-4
東京メトロ銀座線末広町駅3分

坪/ 9.5坪

270,000円 / 月(税別)

CS1818地上1階

東京都千代田区三番町18-18
都営新宿線市ヶ谷駅4分

坪/ 7.7坪

200,000円 / 月(税別)

秋葉原槇町ビル地上8階

東京都千代田区外神田3丁目3-3
東京メトロ銀座線末広町駅3分

坪/ 17.8坪

267,300円 / 月(税別)

畑山第一ビル地上4階

東京都千代田区神田猿楽町2丁目2-6
東京メトロ半蔵門線神保町駅6分

坪/ 18.1坪

270,750円 / 月(税別)

メイゾン麹町地上2階202号室

東京都千代田区麹町3丁目1-8
東京メトロ有楽町線麹町駅2分

坪/ 15.9坪

270,000円 / 月(税別)

麹町駅前商業ビル地上4階-5階

東京都千代田区麹町3丁目1-8
東京メトロ有楽町線麹町駅2分

坪/ 13.3坪

227,273円 / 月(税別)

麹町駅前商業ビル地上3階

東京都千代田区麹町3丁目1-8
東京メトロ有楽町線麹町駅2分

坪/ 11.1坪

200,000円 / 月(税別)

麹町駅前商業ビル地上2階

東京都千代田区麹町3丁目1-8
東京メトロ有楽町線麹町駅2分

坪/ 10.6坪

200,000円 / 月(税別)

南信堂ビル地上7階

東京都千代田区九段南3丁目7-7
都営新宿線市ヶ谷駅5分

坪/ 19坪

237,500円 / 月(税別)

南信堂ビル地上6階

東京都千代田区九段南3丁目7-7
都営新宿線市ヶ谷駅5分

坪/ 19坪

237,500円 / 月(税別)

松岡九段ビル地上2階206号室

東京都千代田区九段南2丁目2-8
東京メトロ東西線九段下駅4分

坪/ 14.5坪

195,750円 / 月(税別)

九段ビル地上3階

東京都千代田区九段南2丁目2-5
東京メトロ半蔵門線九段下駅6分

坪/ 24坪

276,000円 / 月(税別)

タイヤビル地上3階301号室

東京都千代田区九段北1丁目10-2
東京メトロ東西線九段下駅2分

坪/ 16.4坪

180,000円 / 月(税別)

サンライン第14ビル地上7階A室

東京都千代田区九段北4丁目3-16
JR総武・中央緩行線市ヶ谷駅5分

坪/ 16.4坪

237,527円 / 月(税別)

大晃ビル地上5階501号室

東京都千代田区神田錦町2丁目5-1
東京メトロ千代田線新御茶ノ水駅5分

坪/ 23.4坪

265,000円 / 月(税別)

HARVEY神田司町地上3階

東京都千代田区神田司町2丁目15-11
都営新宿線小川町駅2分

坪/ 5.6坪

241,230円 / 月(税別)

トナカイ神田タワー地上11階

東京都千代田区神田東松下町12-1
JR山手線神田駅4分

坪/ 15.8坪

275,800円 / 月(税別)

三好ビル地上2階

東京都千代田区神田多町2丁目7
JR山手線神田駅3分

坪/ 23.5坪

258,500円 / 月(税別)

リプロ神田ビル地上3階

東京都千代田区神田富山町17-3
JR山手線神田駅3分

坪/ 16.2坪

259,200円 / 月(税別)

荒井ビル地上5階北側

東京都千代田区神田駿河台3丁目5-15
東京メトロ千代田線新御茶ノ水駅2分

坪/ 17.5坪

245,000円 / 月(税別)

昭和ビル地上4階西側

東京都千代田区神田和泉町1丁目2-5
東京メトロ日比谷線秋葉原駅2分

坪/ 16.5坪

181,500円 / 月(税別)

和田ビル地上2階

東京都千代田区神田神保町1丁目10
東京メトロ半蔵門線神保町駅1分

坪/ 15坪

180,000円 / 月(税別)

富士第一ビル地上10階

千代田区神田須田町1丁目12-9
東京メトロ丸ノ内線淡路町駅1分

坪/ 18.5坪

240,000円 / 月(税別)

土井ビル地上2階

東京都千代田区内神田2丁目7-12
JR山手線神田駅3分

坪/ 15.7坪

180,000円 / 月(税別)

神保町TKビル地上4階

東京都千代田区神田神保町1丁目13-16
東京メトロ半蔵門線神保町駅2分

坪/ 16.9坪

279,015円 / 月(税別)

NTビル地上5階

東京都千代田区神田神保町1丁目22
東京メトロ半蔵門線神保町駅3分

坪/ 21.1坪

273,910円 / 月(税別)

神田第八KMビル地上3階

東京都千代田区小川町3丁目1
都営三田線神保町駅4分

坪/ 21.2坪

240,000円 / 月(税別)

エスペランサ神田小川町地上2階

東京都千代田区神田小川町3丁目11-7
都営新宿線小川町駅5分

坪/ 15.6坪

256,364円 / 月(税別)

LMN神田ビル地上5階+6階

東京都千代田区内神田2丁目13-6
JR山手線神田駅4分

坪/ 19.4坪

253,000円 / 月(税別)

LMN神田ビル地上4階

東京都千代田区内神田2丁目13-6
JR山手線神田駅4分

坪/ 14.8坪

180,000円 / 月(税別)

花岡ビル地上4階

東京都千代田区岩本町3丁目9-1
都営新宿線岩本町駅3分

坪/ 21.3坪

272,512円 / 月(税別)

岩本町寿共同ビル地上1階B区画

東京都千代田区岩本町3丁目9-13
JR山手線秋葉原駅5分

坪/ 20.6坪

211,820円 / 月(税別)

一番町フェニックスビル地上2階202号室

東京都千代田区一番町15-20
東京メトロ半蔵門線半蔵門駅3分

坪/ 11.5坪

180,000円 / 月(税別)

トライエム大手町ビル地上9階

東京都千代田区内神田1丁目5-1
東京メトロ丸ノ内線大手町駅5分

坪/ 20.5坪

280,000円 / 月(税別)

岩本町194ビル地上6階

東京都千代田区岩本町1丁目9-4
東京メトロ日比谷線小伝馬町駅3分

坪/ 16.6坪

227,273円 / 月(税別)

トーアビル地上2階202号室

東京都千代田区飯田橋2-16-9
都営新宿線九段下駅5分

坪/ 14.4坪

180,000円 / 月(税別)

ダイニ猿楽町ビル地上5階

東京都千代田区神田猿楽町1-2-4
東京メトロ半蔵門線神保町駅4分

坪/ 13.5坪

216,000円 / 月(税別)

カクタス飯田橋ビル地上7階702号室

東京都千代田区飯田橋4丁目7-11
東京メトロ東西線飯田橋駅2分

坪/ 20.4坪

203,400円 / 月(税別)

プロミエ秋葉原地上9階902号室

東京都千代田区神田練塀町73
JR山手線秋葉原駅3分

坪/ 13.7坪

261,000円 / 月(税別)

プロミエ秋葉原地上9階1101号室

東京都千代田区神田練塀町73
JR山手線秋葉原駅3分

坪/ 13.7坪

261,000円 / 月(税別)

プロミエ秋葉原地上10階1001号室

東京都千代田区神田練塀町73
JR山手線秋葉原駅3分

坪/ 13.7坪

261,000円 / 月(税別)

クリエイトビル地上5階

東京都千代田区飯田橋1丁目8‐10
JR中央・総武線飯田橋駅3分

坪/ 20.3坪

257,727円 / 月(税別)

橋口ビル地上2階

東京都千代田区神田神保町1丁目60
東京メトロ半蔵門線神保町駅5分

坪/ 23坪

276,000円 / 月(税別)

B・Fビル地上3階301号室

東京都千代田区神田神保町1丁目38‐1
都営三田線神保町駅3分

坪/ 24坪

250,909円 / 月(税別)

レオビル地上6階

東京都千代田区神田神保町1丁目3‐1
東京メトロ半蔵門線神保町駅2分

坪/ 9.3坪

225,455円 / 月(税別)

レオビル地上4階

東京都千代田区神田神保町1丁目3‐1
東京メトロ半蔵門線神保町駅2分

坪/ 9.3坪

225,454円 / 月(税別)

越後屋ビル地上3階302号室

東京都千代田区神田小川町3丁目‐20
東京メトロ半蔵門線神保町駅4分

坪/ 17.8坪

195,360円 / 月(税別)

第二木津ビル地上4階402号室

東京都千代田区神田小川町2-10

坪/ 18.8坪

206,800円 / 月(税別)

NAビル地上2階

東京都千代田区神田須田町1-3
東京メトロ丸ノ内線淡路町駅2分

坪/ 22.7坪

250,000円 / 月(税別)

カクタス飯田橋ビル地上5階503号室

東京都千代田区飯田橋4丁目7-11
JR総武・中央緩行線飯田橋駅3分

坪/ 22.9坪

229,000円 / 月(税別)

竹内ビル地上3階

東京都千代田区神田須田町1丁目-11
JR山手線神田駅3分

坪/ 17.5坪

245,000円 / 月(税別)

アオキビスポークビル地上6階

東京都千代田区神田神保町3丁目2
東京メトロ半蔵門線神保町駅3分

坪/ 14.2坪

200,000円 / 月(税別)

たちばなやビル地上1階

東京都千代田区神田小川町3丁目5-2
都営三田線神保町駅5分

坪/ 10坪

220,000円 / 月(税別)

昭和ビル地上3階東側

東京都千代田区神田和泉町1丁目2-5
東京メトロ日比谷線秋葉原駅2分

坪/ 30.1坪

270,000円 / 月(税別)

香文堂ビル地上5階

東京都千代田区内神田3丁目7-4
JR中央本線神田駅1分

坪/ 15坪

230,000円 / 月(税別)

ブライトンビル藤沢地上2階201号室

神奈川県藤沢市南藤沢15-16
JR東海道本線藤沢駅7分

坪/ 30坪

225,000円 / 月(税別)